2.2.2. Raumaufteilung
Die Masse der einzelnen Bauteile ist innerhalb des Anhängeraufbaus so aufzuteilen, dass die Bauteile mit den größten Massen im Achsbereich angeordnet werden. Bei der Raumaufteilung ist immer der Einfluss des Bauteiles auf die gesetzlich vorgeschriebene Stützlast von mindestens 5 % der Leermasse bzw. maximal 50 kg zu berücksichtigen. Zunächst ist es günstig, wenn sich die Beteiligten mit den verschiedenen Grundrissmöglichkeiten beschäftigen (Bilder 2.3 bis 2.8).

Bild 2.3. Grundriss mit Querliegerund Bugküche
Geeignet für 2 Personen, bereits ab 2,60 m Aufbaulänge zu realisieren

Bild 2.4. Grundriss mit Querlieger im Heck und Bug
Ermöglicht die Übernachtung von 3 Personen, besonders günstig ist die Anordnung
des Küchen- und Staubereiches über der Achse. Vertreter dieser Aufteilung sind
Bastei und Intercamp

Bild 2.5. Grundriss mit Querliegern, Bugküche und Toilettenraum
Entspricht der Bugvariante des Intercamp mit 3,55 m Aufbaulänge. Durch den
Küchenbereich im Bug kann zusätzlich ein Wasch- und Toilettenraum eingebaut
werden.

Bild 2.6. Grundriss mit Längsschläfer und Bugküche
Ein Vertreter ist der QEK Junior, mit 2,80 m Aufbaulänge zählt er zu den kleinen
Anhängern.

Bild 2.7. Grundriss mit Doppel-Querliegern im Heck und Bug und über der Achse angeordnetem Küchen- und Schrankteil

Bild 2.8. Grundriss mit drei Längsliegern im Heck und einem Querlieger im
Bug, Toilettenraum, Küchen- und Schrankteil
Wie auch beim Grundriss nach Bild 2.7. haben diese Anhänger bereits eine
Aufbaulänge von mindestens 3,80 m.
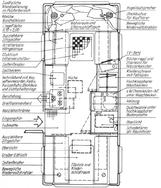
Was in einen Campinganhänger alles eingebaut werden könnte, ist aus Bild 2.9 zu entnehmen.
Im allgemeinen wird ein Campinganhänger von innen nach außen entworfen, wobei die Aufbauabmessungen Länge, Breite und Höhe als Richtwerte festliegen sollten. Die maximale Breite eines Anhängers ist in der 3. Durchführungsbestimmung zur StVZO vom 28. Mai 1982 (GBI. I Nr. 27) mit 2,50 m festgelegt. International haben sich Campinganhänger mit einer Gesamtbreite von 2,00 bis 2,20 m durchgesetzt und bewährt.

Bild 2.9. Grundriss eines Luxus-Campinganhängers
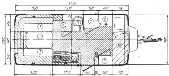
Bei einem Aus- oder Umbau sind durch die im Corpus befindlichen Fensterflächen bereits einige Einschränkungen vorgegeben. Die Bilder 2.10 bis 2.15 zeigen einige vermaßte Grundrissmöglichkeiten von Campinganhängern. Der im Bild 2.10 aufgezeichnete Grundriss ermöglicht bei einer Aufbaulänge von 3270 mm noch den Einbau eines kleinen Wasch- und Toilettenraumes von 840 mm Länge. Ob diese Länge für einen Waschraum noch sinnvoll ist oder nicht muss jeder selbst entscheiden. Wenn für einen Toilettenraum kein Platz zur Verfügung steht so kann auch ein Waschschrank eingebaut werden, der wesentlich weniger Platz beansprucht. Die Bilder 2.11 bis 2.15 zeigen aber auch die Möglichkeiten, die bei einer konstanten

Bild 2.10. Grundriss eines Campinganhängers mit 3270 mm Aufbaulänge und
Liegeflächen für 3 Personen
1 Hecksitzgruppe (Querlieger), 2 Hubtisch; 3 Bugsitzgruppe (Querlieger); 4
Tisch; 5 Küche mit Kühlschrank; 6 Toilettenraum; 7 Waschbecken; 8 Kleiderschrank
und umlaufende Dachstaukästen bzw. Ablageflächen [17].

Bild 2.11.

Bild 2.12.

Bild 2.13.

Bild 2.14.

Bild 2.15.
Aufbaulänge bestehen, die Innenausstattung zu variieren. In den Bildern 2.11 bis 2.13 entsprechen die Einbauteile 7 bis 8 denen im Bild 2.10; zusätzlich enthält der Anhänger: 0 Anrichte mit Schubkästen; 10 Raumteiler; 11 Falttür; 12 Kühlschrank; 13 Küchenschrank. In den Bildern 2.14 und 2.15 bedeuten: 10 Doppelstockbett; 11 Falttür; 12 Kleiderschrank. Alle mit 0 gekennzeichneten Flächen dienen der Ablage von Gegenständen im jeweiligen Funktionsbereich. Bevor die Feinkonzeption im Maßstab 1:10 (auf Millimeterpapier) gezeichnet wird, müssen die Anforderungen an die einzelnen Raumelemente erfasst werden. Dabei sind Verwendungszweck und Personenanzahl von ausschlaggebender Bedeutung. Die Innenraumaufteilung sollte in die Funktionsbereiche Sitz- und Schlafbereich, Küchenbereich, Sanitärbereich und Staubereich unterteilt werden.
Meinungen zum Thema
Was ist Ihre Meinung zu diesem Artikel? Bisher wurde hierzu noch keine Meinung abgegeben - aber Sie haben doch bestimmt eine!
2.2.3. Sitz- und Schlafbereich
Bei kleineren und mittleren Aufbaulängen ist der Sitz- und Schlafbereich als kombinierter Funktionsbereich konzipiert. Der tagsüber benutzte Sitzbereich (Bild 2.16 - im Farbteil) wird durch Absenken des Tisches auf Sitzhöhe zum Liegebereich umgebaut (Bild 2.17 - Bild im Farbteil). Der Tisch ist dabei so weit abzusenken, daß die Tischoberfläche und die Oberfläche der Sitzklappen eine Fläche bilden. Durch Legen der Rückenlehnen auf die Tischfläche ist die Liegefläche fertig. Die rechts und links vom Tisch befindlichen Sitzkonsolen werden gleichzeitig als Stauraum verwendet.

Bild 2.18. Kleine Sitzgruppe im Bug des Campinganhängers Bastei, die auch als Kinderliegefläche genutzt werden kann [13]
Die Kombination zwischen Sitz- und Liegebereich bedeutet jedoch, an jedem Benutzungstag muss umgebaut und geräumt werden. Die Prozedur ist für die Benutzer belastend. Aus diesem Grund hat sich auch bei einigen Anhängern die Trennung zwischen Wohn- und Schlafbereich durchgesetzt. Dies erfordert jedoch von vornherein größere Aufbaulängen.

Bild 2.19. Längsseitig angeordnete Doppelstockbetten, die als Kinderschlafplätze geeignet sind und bei denen die tägliche Umbauprozedur entfällt [10]
Die Personenanzahl bildet die Grundlagen für die Größe der Schlaffläche und ihre Anordnung. Die heckseitig oder bugseitig angeordnete Schlaffläche kann für zwei Personen als Querlieger und für drei Personen als Längslieger gewählt werden. Querlieger haben den Nachteil, dass die an der Wand liegende Person bei jedem Aufstehen die davor liegende Person stört. Kinderschlafplätze werden meist getrennt von dem Erwachsenenschlafplatz im Bug oder Heck angeordnet. Die Variante für einen Bugliegeplatz zeigt Bild 2.18. Es ist aber auch möglich, für zwei Kinder einen an der Längswand abgeteilten Raum mit Doppelstockbetten einzubauen (Bild 2.19).
Abmessungen
Im Normalfall benötigt ein mittelgroßer Mensch (etwa 1,75 m) eine Bettlänge von 1,85 m bis 1,90 m. Und dieses Beispiel kann auch als Regel für die erforderliche Bettlänge gelten (Körpergröße + 10 bis 15 cm).
Die Bettenbreite sollte bei einem Einzelbett nicht unter 0,70 m und bei einem Doppelbett nicht unter 1,30 m sein, günstiger 1,40 m.
Die Höhe der Schlaffläche über dem Fußboden ist bei der kombinierten Sitz- und Liegefläche von der erforderlichen Sitzhöhe abhängig. Die für jeden am besten geeignete Sitzhöhe kann mit einem höhenverstellbaren Bürostuhl ermittelt werden. Im allgemeinen sollte die Sitzhöhe, d. h. die Oberfläche der auf den Sitzklappen aufliegenden Schaumpolster von 80 bis 120 mm Schaumdicke, im Bereich von 350 bis 450 mm liegen. Die Sitztiefe, gemessen von der Vorderkante der Schaumauflieger bis zum Beginn der Rückenlehne, sollte 450 bis 500 mm betragen.
Die Tischgröße wird durch die Konzipierung der Sitzgruppe vorgegeben. Wird ein Klapptisch gewählt, an dem rechts und links die Sitzkonsolen angeordnet sind (Bild 2.16), so wird der Tisch bis zur Rückwand reichen/Bei einer Rundumsitzgruppe (Bild 3.13- Bild im Farbteil) wird die Tischgröße kleiner ausfallen. Zwischen Beginn der Sitzgruppe und Tischvorderkante sollten 150 bis 200 mm Differenz sein, damit man noch auf die Sitzflächen kommt. Günstig ist es, wenn der Tisch im vorderen Bereich angeschrägt wird. Zwischen Oberkante Sitzfläche und Oberkante Tischfläche sollte die Differenz 200 bis 250 mm betragen. Der Tisch muss 40 bis 50 mm breiter sein als die lichte Weite zwischen beiden Sitzkonsolen.
Beachte:
Wird die Sitzklappe an der Seitenwand mit einem Scharnier befestigt, ist bei
jeder Betätigung der Sitzklappe die Rückenlehne wegzunehmen. Es ist daher
günstiger, in die Abdeckung des Staukastens eine Leiste einzuziehen und die
Sitzklappe mit Scharnier an dieser Querleiste zu befestigen.
Meinungen zum Thema
Was ist Ihre Meinung zu diesem Artikel? Bisher wurde hierzu noch keine Meinung abgegeben - aber Sie haben doch bestimmt eine!
2.2.4. Küchenbereich
Der Küchenbereich ist Vorrats-, Koch-, Back-, Reinigungs- und Arbeitszentrum eines Campinganhängers. Bereits aus den genannten Funktionen ist zu erkennen, wie schwierig es ist, eine Küche für einen kleinen Raum zu entwickeln, die diesen Funktionen gerecht wird. Die bisher üblichen Küchenmöbel bestehen aus einem Unterschrank und einem darüber hängenden Oberschrank. Soll ein Kühlschrank eingebaut werden, so besteht die Möglichkeit im rechten oder linken Teil des Unterschrankes (Bild 2.21). Diese Küchenschränke haben eine Länge von 1050 mm bis 1200 mm und eine Tiefe von 420 mm bis 550 mm. Aus diesen Abmessungen ist zu erkennen, dass der vorhandene Stauraum keinesfalls für eine Familie mit 4 Personen ausreicht, um die vorher genannten Forderungen an eine Küche zu erfüllen. In den letzten Jahren hat sich deshalb immer mehr die so genannte Eckküche durchgesetzt. Durch einen zusätzlichen links- oder rechtsseitig angeordneten Vorbau ist es möglich, den Stauraum und die erforderliche Arbeitsfläche wesentlich zu vergrößern. Außerdem kann der Kühlschrank in diesem Zusatzteil angeordnet werden, so dass er nicht mehr im Radkastenbereich liegt und die Höhe der Arbeitsfläche negativ beeinflusst. Die Eckküche ist u. a. auch vorteilhaft zur Raumtrennung zu verwenden.

Bild 2.21. Eingebauter Kühlschrank im Unterteil eines Küchenschrankes [15]
Es ist günstig, wenn die Küche gegenüber der Vorzeitseite angebracht wird, damit die Kochdünste ungehindert ins Freie entweichen können.
Wie sollte aber nun die Küche aufgebaut werden, die trotz des zur Verfügung stehenden Küchenbereiches die genannten Forderungen wenigstens befriedigend erfüllt?
Vorratsbereich
Bei den üblichen Küchen besteht der Vorratsbereich aus Hohlräumen im Unter- und Oberschrank, in denen Einlegeböden vorhanden sind. Diese Schrankelemente müssen nun Töpfe, Kannen, Essgeschirr und den gesamten essbaren Vorrat aufnehmen. Der erfahrene Camper weiß, welche Suchaktionen mitunter erforderlich sind, um in einem 550 mm tiefen Küchenschrank den benötigten Gegenstand zu finden. Einen Ausweg zeigt Bild 2.22. Obwohl die Grundfläche nicht verändert wurde, werden durch eine sinnvolle Aufteilung des Küchenschrankes und Ausnutzung der Türinnenflächen als zusätzlichen Stauraum die Gebrauchseigenschaften verbessert. Eine weitere Verbesserung erreicht man, wenn das Kochgeschirr aus der Küche herausgenommen wird und dafür neben der Küche, in den meist zu groß ausfallenden Bettkästen, zusätzliche Schübe eingebaut werden.

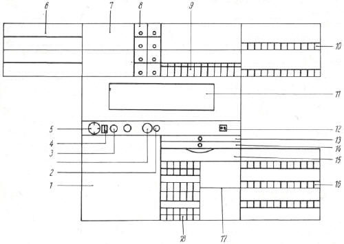
Bild 2.22. Küchenblock
1 Kühlschrank; 2 Piezozünder für Kühlschrank; 3 Bedienelemente für Kocher; 4
Schalter für Kühlschrank; 5 Kurzzeitwecker; 6 Tür mit Abstellgitter für
Flaschen, Gewürze u. a.; 7 Abstellraum mit Einlegeboden; 8 Schübe für Mehl,
Zucker u. a.; 9 Drahtgitter zum Einstellen der Teller mit darüber liegendem
Abstellraum; 10 Tür mit Drahtgitter; 11 Küchenfenster für Dunstabzug; 12
Steckdose; 13 herausziehbare Arbeitsplatte; 14 Besteckkasten; 15 Schub für Brot
mit Belüftungsausschnitt; 16 Drahtgitter- oder Plastabstellflächen an der
Türinnenseite; 17 Abstellraum mit Einlegeboden; 18 herausziehbare Drahtkörbe
Koch-, Reinigungs- und Arbeitsbereich
Auf dem Küchenunterteil ist die Kocher-Spüle-Kombination angeordnet. Diese besteht aus zwei- oder dreiflammigen Brennern und einem Wasch- und Spülbecken (vgl. Bild 2.21). Durch Aufklappen der darüber angeordneten Abdeckklappen, die im zugeklappten Zustand gleichzeitig die Arbeitsfläche ergeben, ist der Koch- und Reinigungsbereich einsatzbereit. Werden die Abdeckplatten am Küchenunterteil seitlich mit einem Scharnier befestigt, so können diese im aufgeklappten Zustand als zusätzliche Abstellfläche benutzt werden. Dazu bedarf es jedoch eines Stützwinkels, auf dem die Klappen aufliegen. Die Stützwinkel werden rechts und links am Unterteil angeschraubt. Auch eine herausziehbare Rohrhalterung kann zur Unterstützung der aufgedeckten Klappen benutzt werden. Aber die seitlich aufklappbaren Abdeckplatten haben auch einen Nachteil. Werden sie als zusätzliche Abstellfläche verwendet so ist ein Teil der Sitzfläche nicht nutzbar oder der Ausgang wird durch die Klappe versperrt. Aus diesem Grund gibt es Lösungen, bei denen die Klappen geteilt sind und sich in Richtung Innenwand aufklappen lassen.
Ist im Küchenbereich kein Ausstellfenster angebracht, so sollte die Dachentlüftung unmittelbar über der Kochstelle liegen, damit der Kochwrasen unbehindert nach außen entweichen kann (Bild 2.23 - Bild im Farbteil).

Bild 2.24. Koch- und Reinigungsbereich 1 zwei Kochplatten für 220-V-Anschluß; 2 Wärmeplatte; 3 zwei Gasbrenner für Propan/Butan-Anschluss; 4 Abstellplatte mit Wasserauffangschale und Wasserüberlauf; 5 Schneidbrettchen; 6 Waschbecken
Für die Wasserversorgung ist es vorteilhaft, wenn eine elektrische oder pneumatische Wasserpumpe installiert wird. Lässt die Aufbaulänge eine Küchenlänge von 1,50 m und mehr zu, so lässt sich der Koch- und Reinigungsbereich durch den zusätzlichen Einbau einer Abstellplatte mit Wasserüberlauf zum Waschbecken, einer Wärmeplatte zum Warmhalten der bereits fertigen Speisen, zwei Kocherplatten für 220-V-Betrieb und den Einbau von Schneidbrettchen erweitern (Bild 2.24). International haben einige Luxusanhänger im Küchenbereich bereits eingebaute Dunstabzugshauben sowie fest installierte Brat- und Grillgeräte.
Beachte:
- beim Einbau von Gasbrennern, Kochplatten, Wärmeplatten, Brat- und Grillgeräten
die Bestimmungen des Brandschutzes!
Abmessungen
Die Länge wird durch die Kocher-Spüle-Kombination bzw. durch die zum Einbau kommenden Baugruppen bestimmt. Die Tiefe soll 420 mm bis 550 mm unter Beachtung der Kocher-Spüle-Kombination und die Arbeitshöhe des Arbeitsbereiches 900 bis 1000 mm betragen.
Meinungen zum Thema
Was ist Ihre Meinung zu diesem Artikel? Bisher wurde hierzu noch keine Meinung abgegeben - aber Sie haben doch bestimmt eine!







