Vor 57 Jahren
Folgende Veränderung wurde am Trabant P 601 vorgenommen:
12.12.1968:- Zündanlassschalter unterhalb der Lenksäule bei Standard-Fahrzeugen
8.2.1. Beschreibung des Teleskop-Stoßdämpfers
Der Stoßdämpfer hat die Aufgabe, die durch Unebenheiten der Fahrbahn entstehenden Schwingungen abzufangen bzw. sie zu dämpfen.
Die Wirkungsweise ist doppelt wirkend, wodurch eine optimale Dämpferwirkung gegeben ist. Bei Druckbeanspruchung des Dämpfers erfolgt eine schwache und bei Zugbeanspruchung eine starke Dämpfwirkung.
Die in Gummi gelagerte Buchse und die beiden Ringpuffer dienen zur elastischen Befestigung des Dämpfers am Fahrzeug.
Schwingt der Fahrzeugaufbau infolge einsetzender Relativbewegungen in Richtung der Fahrzeugachse, so werden diese durch die Verbindung beider Elemente mittels des Dämpfers schwach gedämpft. Versucht sich nun die zusammengedrückte Fahrzeugfeder zu entspannen, wird diese Bewegung durch den nach oben schiebenden Kolben stark gehemmt.
Die Wirkungsweise des Teleskop-Stoßdämpfers ist geschwindigkeitsabhängig, d. h., je größer und schneller die Schwingungen des Fahrzeugaufbaues auftreten, um so stärker ist die Dämpfwirkung des Dämpfers.

Bild V 14. Befestigung der Vorderfeder
(1) Federbefestigungsschrauben
(2) Federschienen
(3) Federschraube
(4) Manschette
(5) Befestigungsschrauben für Lenkung
8.2.1.1. Teleskop-Stoßdämpfer ausbauen, auf Funktion prüfen, ggf. Caramba-Stoßdämpferöl auffüllen und wieder einbauen
- Schraube für Stoßdämpferbefestigung am Lenker abschrauben.
- Mit Sonderschlüssel WE 2289 (16/2) Stoßdämpfer am Radkasten abschrauben.
Beachte: Der Sonderschlüssel WE 50 2867 ist zu verwenden, weil hierdurch Beschädigungen durch Gegenhaltung mit Brenner- oder Kombizange an der geschliffenen Kolbenstange vermieden werden. - Stoßdämpfer nach unten herausnehmen.
- Überprüfung des Stoßdämpfers:
Allgemeines: Bei Überprüfung des Stoßdämpfers von Hand ist festzustellen, ob über dem gesamten Dämpferhub eine gleichmäßige Dämpf Wirkung vorhanden ist. Das Auseinanderziehen des Stoßdämpfers darf nur vertikal, höchstens bis zu 45° geneigt, erfolgen.
Ist bei der genannten Funktionsprobe über dem gesamten Hub ein Widerstand in Zugrichtung vorhanden, dann ist die Funktion des Stoßdämpfers gewährleistet, und er kann wieder eingebaut werden. Wird jedoch bei der Funktionsprobe in der oberen Kolbenstellung nach mehrmaligem Pumpen ein Leerhub festgestellt, dann liegt in den meisten Fällen Ölverlust vor. Die Ölfüllung wird wie folgt durchgeführt:
- Ringpuffer (15/2), Distanzbuchse (15/33), Schutzmantel (15/29) und Pufferscheibe (15/30) von der Kolbenstange (15/11) abnehmen.
- Gewindering (15/31) mit Sonderschlüssel WE 50 2418 herausschrauben.
- Scheibe (15/32) und Ringdichtung (15/24) abnehmen.
- Kolbenstange (15/11 mit Führungsstück (15/19) und Kolben (15/12) herausziehen.
- Stoßdämpferöl aus dem Gehäuse ausgießen.
- Zylinder (15/10) und Ventilkörper (15/3) mit kompletten Bodenventil herausnehmen.
Achtung: Die Einstellung des Kolben- und Bodenventiles darf nicht verändert werden.- Alle Nichtgummiteile gründlich in Waschbenzin reinigen, Bohrungen und Hohlräume mit Pressluft ausblasen.
- 80 cm3 neues Caramba-Stoßdämpferöl mit Hilfe eines Messzylinders in den Stoßdämpfer-Zylinder (15/10) einfüllen, langsam eingießen, damit das Öl in den Reserveölraum überströmen kann. Es darf nur Caramba-Stoßdämpferöl (Viskosität 8 • • • 10°E bei plus 20 °C) verwendet werden.
Der Zusammenbau bzw. Einbau des Stoßdämpfers erfolgt in umgekehrter Reihenfolge des Ausbaues, wobei folgende Punkte zu beachten sind:
- Die Gummidichtung (15/24) ist in jedem Falle zu erneuern.
- Der Gummiblock im Auge des Stoßdämpfers ist auf einwandfreien Zustand zu prüfen bzw. zu erneuern.
- Bei der Befestigung im Radkasten ist darauf zu achten, dass sich je ein Ringpuffer (15/2) außer- und innerhalb des Radkastens befindet.
Anmerkung: Alle Ventileinstellungen und Instandsetzungen an Teleskop-Stoßdämpfern dürfen nur von Spezial-Vertragswerkstätten ausgeführt werden.
Die Verwendung von Original-Ersatzteilen und die Einstellung der Ventile unter Verwendung von Prüfgeräten ist dadurch gewährleistet.

Bild V 16. Stoßdämpfer ausbauen
(1) Gummimuffe
(2) Sonderschlüssel
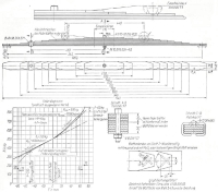
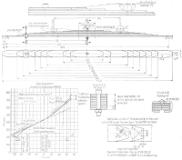
9.1. Beschreibung der Hinterachse
Die Hinterachse ist eine Schräg-Pendelachse mit Dreiecklenker. Beide Hinterräder sind durch diese Anordnung unabhängig voneinander gefedert. Die Stoßdämpfung erfolgt wie bei der Vorderachse durch doppelt wirkende Teleskop-Stoßdämpfer. Die Querblattfeder ist als Progressivfeder ausgebildet. Markant an der Hinterachskonstruktion ist die tief liegende Querblattfeder hinter der Achse.
Hierdurch konnte der sonst im Kofferraum störende Federtunnel entfallen.
9.1.1. Hinterfeder aus- und einbauen
- Hinterwagen hochbocken, Räder abnehmen.
- Nachschalldämpfer mit Rohrleitung abschrauben, drei Schrauben (10 mm SW)
für Aufhängung, eine Schraube (14 mm SW) für Klemmschelle.
Nachschalldämpfer abnehmen. - Blechlasche (3/1) für Progressiv-Gummipuffer hochbiegen (3), Gummipuffer
herausdrücken.

Bild H 3. Federanschlag ausbauen
(1) Blechlasche (2) Federanschlag - Sechskantschrauben (4/1) für Federbefestigung abschrauben (19 mm SW).

Bild H 4. Federbefestigung lösen
(1) Federbefestigungsschrauben
(2) Federunterlage - Miramid
(3) Federschraube
(4) Federanschlag - Federspannvorrichtung WE 502 314 (5) ansetzen. Feder spannen, bis die
Lagen aus den Gummilagern im Lenker frei werden.
Feder samt Spannvorrichtung abnehmen.

Bild H 5. Feder spannen
Der Einbau erfolgt in umgekehrter Reihenfolge des Ausbaues.














